雙轉子流量計
產品編號:173337-898
產品型號:ZW-LUS
更新時間:2013.05.18
企業單位:江蘇中偉測控儀表有限公司
瀏覽次數:
更多產品圖片:
產品詳細介紹:

一、產品概述:
ZW-LUS系列雙轉子流量計(以下簡稱流量計)是一種設計******、經過精密加工裝配的新型容積式流量計。一對螺旋轉子是計量腔體內***一的運動體,起到分割、測算、運送和排泄被測液體的作用。該型號流量計在結構上增加了定位齒輪,使兩只轉子間在轉動時達到彼此互不接觸。該流量計工作時運轉平穩、噪音低、磨損少、準確度高,粘度適應性強,可以允許被測液體中的微細顆粒通過,從而不易卡表。該流量計經過化學鍍鎳處理,因此具有防腐、耐磨的特性,可代替不銹鋼材質的流量計。
二、計量原理:
ZW-LUS系列雙轉子流量計對流體流量的測定是在計量腔體內完成的。一對螺旋轉子在液體的壓力下轉動,轉子與計量腔壁間形成的封閉空間(圖陰影部分)每回轉一次排出8倍陰影體積。因此根據這一關系,只要計量轉子回轉的次數,即可計算出流量累積量,根據每秒的轉數,即可測出瞬時流量。
三、結構組成:
ZW-LUS系列雙轉子流量計主要由殼體,一對螺旋轉子,磁性聯軸器,減速機構,調整齒輪,計數器及發訊裝置組成.流量計的本體分單體和雙體兩種.單體即殼體和流量計箱為一體;雙體即殼體和流量計為兩體.
螺旋轉子的轉速,通過磁性聯軸器和一系列齒輪組成的減速機構,傳到表頭計數器.磁性聯軸器主要由主動磁鋼和從動磁鋼組成.采用磁性聯軸器可以提高流量計的工作壓力和工作溫度,操作安全,維修方便.
四、廣泛應用:
ZW-LUS系列雙轉子流量計是用于管道中液體流量的測量和控制的精密儀表。廣泛應用于石油、化工、冶金、電力、交通、船舶、油庫、碼頭、槽罐車等部門,特別適用于原油、精煉油、輕烴等工業液體的計量流量計可現場指示,字碼直接讀數并可配發訊器,輸出電脈沖信號,遠傳到二次儀表或計算機,組成自動控制、自動檢測和數據處理等系統。
五、主要特點:
1、適用于稀油、輕質油、稠油、含砂量大、含水量大的原油,被測量液體的粘度范圍大。
2、流量計通過的液體流量大,***大流量是同通徑普通容積表的二倍左右。
3、使用壽命長,準確度高,可靠性強。
4、壓內損失極小。
5、有線遠傳***長距離為1000米,脈沖信號輸出N=0.1L(一個脈沖為1N),可直接與計算機聯網。
6、本安防爆IaⅡCT6(本質安全型);隔爆dⅡBT6(隔爆型);防護IP56。
六、技術參數:
1、可測液體 石油、石油產品、化工介質等;
2、公稱通徑(mm) 10、15、25、40、50、80、100、150、200、250、300 ;
3、準確度(%) 0.1、0.2、0.5;
4、壓力損失 0.4-3 mPa.s時<40KPa;
5、工作壓力(MPa) 1.6、2.5、4.0、6.3;
6、溫度范圍(℃) -20~+60、-20~+120、+100~+200、+150~+250;
7、防護等級 IP65;
8、環境溫度( -30~+70℃);
9、介質粘度(0.32~1000mPa.smPa.s);
七、安裝要求:
1、環境條件:周圍無腐蝕性流體,機械振動小,灰塵少且遠離熱源的場所。對于配有體積修正儀的智能型流量計,還應有符合規定的環境。
2、環境溫度:一般不超過-20——+8O℃范圍。
3、管道條件:在安裝流量計前,管道須***進行清洗和吹掃,清除一切雜物、銹蝕和污垢。連接管道一般應與流量計進出口等口徑同軸線,不得有凸出管壁的凸出物突人管道內。 流量計應采取無應力安裝,充分考慮工作溫度引起的管道應力。
作為新型容積式流量計,只有滿足其工況條件并按要求正確使用,才能利用其性價比,延長使用壽命。因此選型和使用中需注意以下3個問題。
1、由于采用單殼體結構,***高壓力不高于2.0MPa,因此高壓長輸管道不宜使用。
2、非連續使用場合再次使用時,須***從排氣孔排凈計量腔內空氣,以防止產生氣穴而導致計量誤差增大和石墨軸承損壞。
3、轉子間隙不高于0.2μm,且介質在計量腔內行程較長,對計量介質純凈度要求比其它容積式流量計高,需使用不低于40目的不銹鋼濾網并定期清洗。轉子為鑄鐵材料,介質含水率要求不高于5%,否則會產生銹蝕,影響使用。
八、公稱通徑及流量范圍:
|
公稱通徑 |
流量范圍(m3/h) | |||||||||
|
0.3mpa.s |
0.3~2mpa.s |
2~5 |
5~15 |
15~50 |
50~400 |
400~1000 |
1000~1500 |
1500~2000 | ||
|
LPG |
汽油 |
煤油 |
輕柴油 |
A重油 |
B重油 |
C重油 |
高 粘 度 液 體 | |||
|
8 |
0.04~0.4 |
0.04~0.4 |
0.04~0.4 |
0.04~0.4 |
0.03~0.3 |
0.03~0.3 |
0.03~0.3 |
0.03~0.3 | ||
|
15 |
0.25~2.5 |
0.25~2.5 |
0.25~2.5 |
0.3~3.0 |
0.3~3.0 |
0.3~3.0 |
0.3~3.0 |
0.25~1.5 | ||
|
25 |
0.6~6 |
0.6~6 |
0.6~6 |
0.6~6 |
0.6~6 |
0.6~6 |
0.6~6 |
0.5~5 |
0.5~4 |
0.5~3 |
|
40 |
5~20 |
4.5~20 |
4~20 |
3~20 |
2.5~20 |
2.5~20 |
2.5~20 |
2~13 |
2~12 |
2~10 |
|
50 |
6~30 |
5~30 |
5~30 |
4~30 |
4~30 |
4~30 |
3~30 |
2.5~25 |
2.5~20 |
2.5~15 |
|
80 |
30~80 |
20~80 |
15~80 |
12~~80 |
10~80 |
8~80 |
6~80 |
5~55 |
5~45 |
5~39 |
|
100 |
50~180 |
35~180 |
25~180 |
20~250 |
17~250 |
10~250 |
8.5~250 |
8.5~130 |
8.5~110 |
8.5~97 |
|
150 |
70~260 |
50~260 |
40~260 |
30~260 |
20~340 |
17~340 |
15~340 |
12~190 |
12~160 |
12~140 |
|
200 |
100~380 |
70~380 |
55~380 |
45~500 |
35~500 |
30~500 |
25~500 |
25~280 |
25~220 |
25~200 |
|
250 |
200~630 |
140~630 |
110~630 |
90~800 |
70~800 |
55~800 |
45~800 |
45~460 |
45~380 |
45~340 |
|
300 |
300~980 |
210~980 |
170~980 |
140~1100 |
110~1100 |
90~110 |
65~1100 |
65~720 | ||
2.如準確度為0.2級的流量計,流量范圍上限值不變,下限值按量程比1:5計算,如準確度為0.1級按1:3計算。
九、外型尺寸:
1、轉子結構

轉子組合
2、雙轉子流量計及智能表總體結構

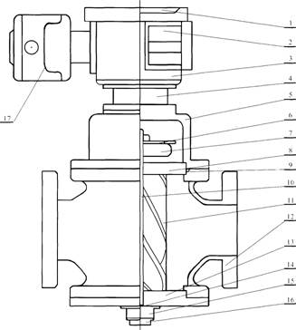
十、智能表總體結構圖:
1、儀表盤2.電池3.二次表4.連接座5.U型帽6.發訊片7.定位齒輪8.上蓋板9.O型環10.軸11.轉子12.主體13., 上蓋板14.止推軸承15.調節螺釘16.底蓋17.遠傳體
2、外型尺寸見下表:
|
項目名稱 |
公稱壓力Mpa |
外形尺寸 |
法蘭連接尺寸 |
螺栓 | |||||||||||
|
L |
D |
H |
H1 |
D1 |
D2 |
D3 |
X |
Y |
h |
t |
t1 |
數量 |
螺紋 | ||
|
ZW-LUS80
|
1. 6, 2. 5 |
380 |
270 |
690 |
154 |
195 |
160 |
135 |
|
|
20 |
3 |
|
8 |
Ml6 |
|
4. 0, 6. 4 |
380 |
270 |
690 |
154 |
220 |
172 |
140 |
127 |
128.6 |
30 |
7 |
5 |
8 |
M20 | |
|
10, 16 |
|
|
|
|
|
|
|
|
|
|
|
|
|
| |
|
ZW-LUS100
|
|
380 |
352 |
740 |
190 |
230 |
190 |
160 |
|
|
22 |
3 |
|
8 |
M20 |
|
4. 0, 6. 4 |
380 |
352 |
740 |
190 |
260 |
204 |
170 |
157 |
158.8 |
32 |
7 |
5 |
S |
M22 | |
|
10, 16 |
|
|
|
|
|
|
|
|
|
|
|
|
|
| |
|
ZW-LUS150
|
1. 6, 2. 5 |
560 |
420 |
840 |
220 |
300 |
250 |
218 |
|
|
27 |
3 |
|
8 |
M20 |
|
4. 0, 2. 4 |
560 |
420 |
840 |
220 |
330 |
280 |
228 |
216 |
217.5 |
38 |
7 |
5 |
1"' |
M24 | |
|
10, 16 |
|
|
|
|
|
|
|
|
|
|
|
|
|
| |
|
ZW-LUS200
|
1. 6, 2. 5 |
700 |
560 |
890 |
240 |
360 |
310 |
274 |
|
|
27 |
3 |
|
12 |
M24 |
|
4. 0, 6.4 |
700 |
560 |
890 |
240 |
375 |
320 |
284 |
257.5 |
259 |
34 |
7 |
5 |
12 |
M28 | |
|
10, 16 |
|
|
|
|
|
|
|
|
|
|
|
|
|
| |
|
ZW-LUS250
|
1. 6, 2. 5 |
1000 |
720 |
1 1 00 |
270 |
425 |
370 |
330 |
|
|
29 |
3 |
|
1"' |
M24 |
|
4. 0, 6.4 |
1000 |
720 |
1100 |
270 |
445 |
338 |
335 |
324 |
325.5 |
48 |
7 |
5 |
16 |
M28 | |
|
10, 16 |
|
|
|
|
|
|
|
|
|
|
|
|
|
| |
|
ZW-LUS300 |
<, P, >1.6、2.5 1. 6, 2. 5 |
1000 |
720 |
1230 |
400 |
485 |
430 |
390 |
|
|
30 |
4 |
|
1 '' |
M24 |
|
4. 0, 6.4 |
1000 |
720 |
1230 |
400 |
520 |
451 |
392 |
381 |
328.6 |
51 |
7 |
5 |
16 |
M30 | |
|
10, 16 |
|
|
|
|
|
|
|
|
|
|
|
|
|
| |
|
1 |
2 |
3 |
4 |
5 |
6 |
7 |
7 |
8 |
9 |
10 |
11 | |||
|
基本型號 |
公稱通徑 |
準確度 |
壓力級別 |
溫度級別 |
顯示形式 |
輸出信號 |
批控形式 |
材料組別 |
接口形式 |
外供電源 |
內容含義 | |||
|
ZW-LUS |
|
|
|
雙轉子流量計(江蘇中偉) | ||||||||||
|
|
1/8” |
|
|
1/8”--20”選擇一種或以mm | ||||||||||
|
|
0.1 |
|
準確度0.1級(或0.2、0.5) | |||||||||||
|
|
|
S1 |
公稱壓力0.6M.Pa | |||||||||||
|
|
S2 |
公稱壓力1.0M.Pa | ||||||||||||
|
S3 |
公稱壓力2.5M.Pa | |||||||||||||
|
S4 |
公稱壓力4.0M.Pa | |||||||||||||
|
S5 |
公稱壓力6.3M.Pa | |||||||||||||
|
S6 |
公稱壓力6.3M.Pa | |||||||||||||
|
S7 |
公稱壓力10M.Pa | |||||||||||||
|
S8 |
公稱壓力15M.Pa | |||||||||||||
|
|
M1 |
測量介質溫度:-40~+60℃ | ||||||||||||
|
|
M2 |
測量介質溫度:-10~+80℃ | ||||||||||||
|
M3 |
測量介質溫度:-10~+200℃ | |||||||||||||
|
M4 |
測量介質溫度:-10~+300℃ | |||||||||||||
|
|
N |
現場無顯示 | ||||||||||||
|
|
T |
現場顯示累積流量 | ||||||||||||
|
I |
現場顯示瞬時流量 | |||||||||||||
|
L |
現場顯示單次流量(回零計數) | |||||||||||||
|
Y |
現場大字碼回零計數器 | |||||||||||||
|
P |
脈沖輸出 | |||||||||||||
|
|
4 |
4~20mA輸出 | ||||||||||||
|
H |
4~20mA+HART協議 | |||||||||||||
|
V |
1~5V輸出 | |||||||||||||
|
3 |
232通訊協議 | |||||||||||||
|
8 |
485通訊協議 | |||||||||||||
|
M |
MODBUS協議 | |||||||||||||
|
|
C1 |
機械批控器 | ||||||||||||
|
|
C2 |
電子批控器 | ||||||||||||
|
|
|
F1 |
|
F1—F53見零部件材料組合表 | ||||||||||
|
|
J1 |
NPT 美國推拔管螺紋 | ||||||||||||
|
J2 |
SPT英國標準管螺紋 | |||||||||||||
|
J3 |
zg****標準法蘭 | |||||||||||||
|
J4 |
NIST美國標準法蘭 | |||||||||||||
|
|
V |
按5V、12V、24V、36V等填寫 | ||||||||||||
1、流量計名稱、型號。規格、材質等。
2、介質溫度(℃)、工作壓力(Mpa)、流量范圍(m3/h)。
3、介質粘度值或介質名稱。
4、有無特殊要求(如防爆等)。
5、你需要詳細了解有關產品,請來電索取資料。
6、您需要中偉測控的顯示儀表配套時,請參閱相應的說明書,選用合適的型號或由我公司技術人員根據您提供的資料替您設計選型。
十三、售后服務承諾:
1、我公司所售雙轉子流量計系列產品在十二個月以內出現質量問題的,負責免費維修。
2、質保期內如我公司產品出現任何質量問題,我公司負責免費維修或更換。
3、質保期內如用戶使用不當,造成產品損壞,我公司負責維修,收取損壞部件成本費。
4、質保期后產品出現質量問題,我公司負責維修,收取損壞部件成本費。
5、如用戶需我公司現場服務,對省內用戶我公司服務人員12小時內到達現場,省外用戶48小時內到達現場。
6、攜手中偉測控,共創美好未來!我公司投訴電話: 0517-86918678。


